Alma on Dobbin, New York
May 16, 2014
Alma hosted a public reception and presentation by two Budapest-based architecture firms that won Archetizer A+ Awards for recent projects in Budapest.
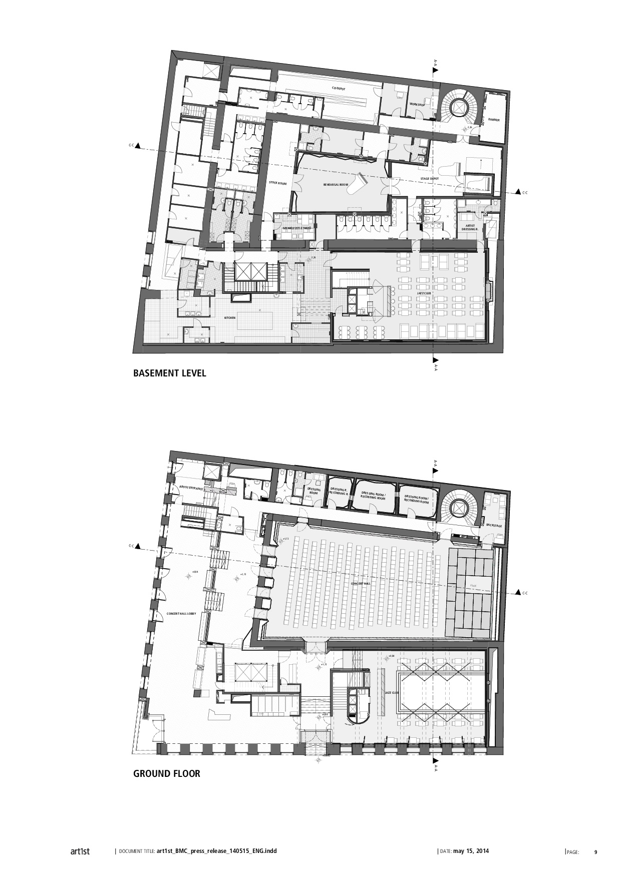
The architecture firm art1st design architects, comprising Abdel Rahim Chehade, Dorottya Göz, and Daniel Taraczky, won the Archetizer A+ Award in the Architecture+Sound category, and an honorable mention in the Theatres and Performing Arts Centres category for their design of the Budapest Music Center.
The firm sporaarchitects, comprising Tibor Dékány, Sándor Finta, Ádám Hatvani and Orsolya Vadász, was the Popular Choice Winner and Jury Winner in the Architizer A+ Awards for the category of Bus & Train Stations, winning for its design of the Fővám tér and the Szent Gellért tér metro stations in Budapest.










© ALMA 2014